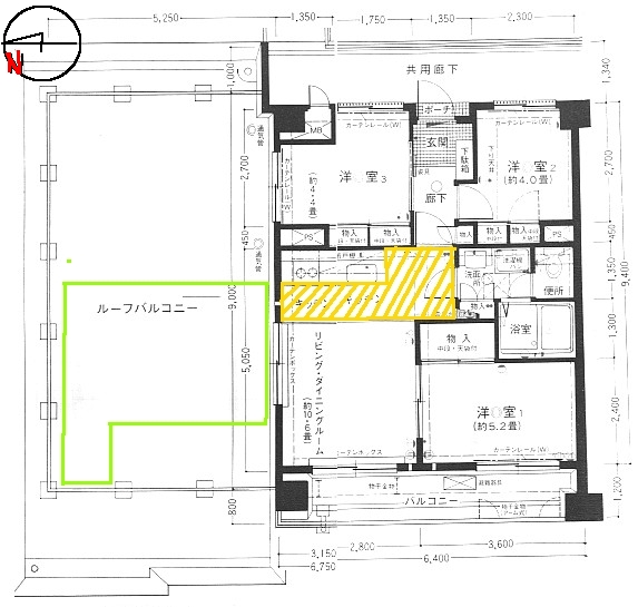
専有面積 54.94u
ルーフバルコニー 47u
昭和59年12月入居
今回の、リフォームは全部屋の壁・天井と床(洗面所・便所の床を除く)です。
壁天井は、すべて石灰クリームによる塗壁で、玄関まわりは−わら−を入れます。
また、洗面所・トイレ・LDKは2回塗の仕上げとしました。トイレは腰まで桐の腰壁にします。
床は、キッチンまわりを(色つきの部分)桐のフローリングとし、そのほかはタイルカーペットにします。
ルーフバルコニーは、小金井や下井草で実施した屋上庭園(予算の都合で半分程度)にします。
ルーフバルコニー側の窓を、結露防止と、断熱性の向上のため2重サッシにします。
<という予定ではじめますが、どうなることでしょう????>
