エコリフォームの風景


完成の写真

写真−1
写真−2
写真−3
洋室1  
写真−4
写真−5
写真−6
写真-12
玄関の壁
−わら壁
写真−9
写真−11
写真−13
DK
写真−7 洗面所
写真−8
写真-10
トイレ
塗料 ブレーマー塗料
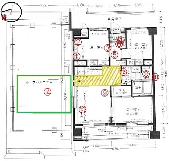
写真−14 ルーフバルコニー

戻る